Omschrijving
Wijk 5-44a – Urk
Wonen in het oude dorp van Urk is iets bijzonders. De karakteristieke pleintjes, de sfeer van het dorp en het contact met de buren geven deze plek een unieke charme die je nergens anders vindt. En precies op zo’n sfeervol pleintje staat deze verrassend complete woning.
Achter de karakteristieke gevel van Wijk 5-44a schuilt een woning die in 2023 vrijwel volledig opnieuw is opgebouwd. Alleen de oorspronkelijke buitenmuren zijn behouden gebleven; verder is alles vernieuwd en opnieuw opgebouwd. Hierdoor ervaar je het comfort van een nieuwe woning, midden in het historische hart van het dorp. Instapklaar, zonder klussen of verbouwen.
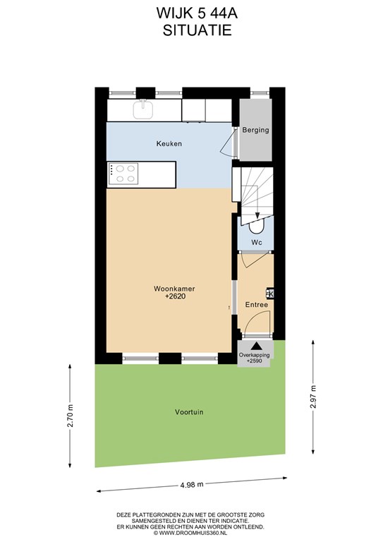
Binnen valt direct op hoe praktisch en doordacht de woning is ingedeeld. De lichte woonkamer vormt samen met de open keuken een gezellige leefruimte waar je je meteen thuis voelt. Dankzij de slimme indeling wordt elke vierkante meter optimaal benut.
Op de verdiepingen bevinden zich drie slaapkamers, waardoor er ruimte is voor een klein gezin, logés of een thuiswerkplek. De badkamer op de eerste verdieping is opvallend royaal en voorzien van alle gemakken – een comfortabele plek om de dag te beginnen of juist rustig af te sluiten.
De zolderverdieping is door de grote dakkapel uitgegroeid tot een volwaardige slaapkamer met een bijzonder uitzicht over het dorp. Wakker worden met zicht over Urk geeft elke dag weer een gevoel van ruimte en vrijheid.
Ook buiten ervaar je de charme van het oude dorp. Het pleintje voor de woning is een plek waar buren elkaar kennen en waar rust en gezelligheid samenkomen. Tegelijkertijd loop je binnen enkele stappen het levendige oude centrum in. Die combinatie van rust, sfeer en de nabijheid van alles wat het dorp zo uniek maakt, maakt dit een heerlijke plek om te wonen.
Ben jij liefhebber van het oude dorp en zoek je een instapklare woning met karakter op een bijzondere plek? Dan is Wijk 5-44a absoluut een bezichtiging waard.
Bieden vanaf € 400.000,- k.k. en gunning voorbehouden.