Zomerpeil 5

8322 BJ Urk
Koopprijs
€ 397.500,-

Status: Beschikbaar
Koopprijs: € 397.500,- k.k.
Adres: Zomerpeil 5
Postcode: 8322 BJ
Plaats: Urk
Woonplaats: Flevoland
Aanvaarding: In overleg
Perceeloppervlakte: 142 m2
Woonoppervlakte: 132 m2
Aantal Kamer(s): 4
Onderhoud binnen: Goed
Onderhoud buiten: Goed
Bouwjaar: 2003
Woonhuis soort: Eengezinswoning
Woonhuis type: Tussenwoning
Energie klasse: A
Einddatum energie label: 26 maart 2024
Verwarming: CV ketel
Aangeboden sinds: 3 december 2025, 13:36

Omschrijving

Comfortabel, energiezuinig én recent gerenoveerd wonen op Urk!

In de Polderwijk van Urk staat deze gezellige eengezinswoning te koop op Zomerpeil 5. Dit huis is klaar voor de toekomst en biedt direct comfort dankzij de recent gerenoveerde badkamer (2025), de installatie van een nieuwe (hybride) ketel (2025) en nieuwe zonnepanelen (2025), aangevuld met een thuis accu. Met een bouwjaar van 2003 en een al uitstekend energielabel A (mogelijk hoger gezien de verduurzaming naderhand), is dit de ideale, energiezuinige woning voor jonge gezinnen en starters die op zoek zijn naar een ruime, comfortabele en duurzame plek om thuis te komen.

Deze karakteristieke tussenwoning biedt een sfeervolle woonbeleving in een kindvriendelijke buurt. Met een perceeloppervlakte van 142 m2 is er voldoende ruimte om je eigen thuis te creëren en te genieten van het goede leven op Urk.

Bij binnenkomst word je verwelkomd door een lichte en ruime woonkamer waar gezelligheid centraal staat. De gezellige keuken met landelijke inrichting is voorzien van diverse inbouwapparatuur en biedt voldoende ruimte om heerlijke maaltijden te bereiden en samen te genieten aan tafel.

We lopen door naar de eerste verdieping. Hier bevinden zich 3 slaapkamers. Eén van de slaapkamers is ‘kaal’ en biedt de perfecte gelegenheid om deze volledig naar eigen smaak in te richten en af te werken! De badkamer is in 2025 volledig en smaakvol gerenoveerd en uitgerust met o.a. een ligbad en wastafel. Ideaal om na een dag hard werken, je terug te kunnen trekken om heerlijk te ontspannen.

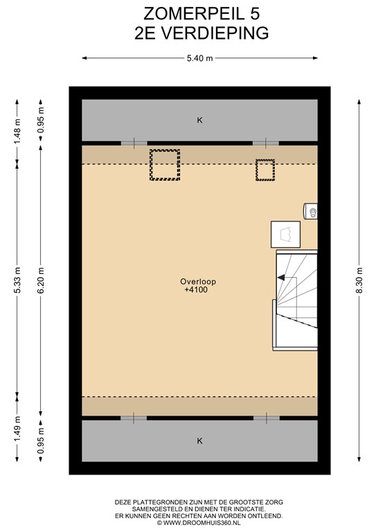
De 2e verdieping is momenteel een grote, open zolderruimte. Dit is de ideale plek om met gemak een 4e of zelfs 5e (slaap)kamer te realiseren. Uiteraard is het ook mogelijk om een dakkapel te plaatsen, waardoor je nog meer volume en leefruimte creëert op deze verdieping.

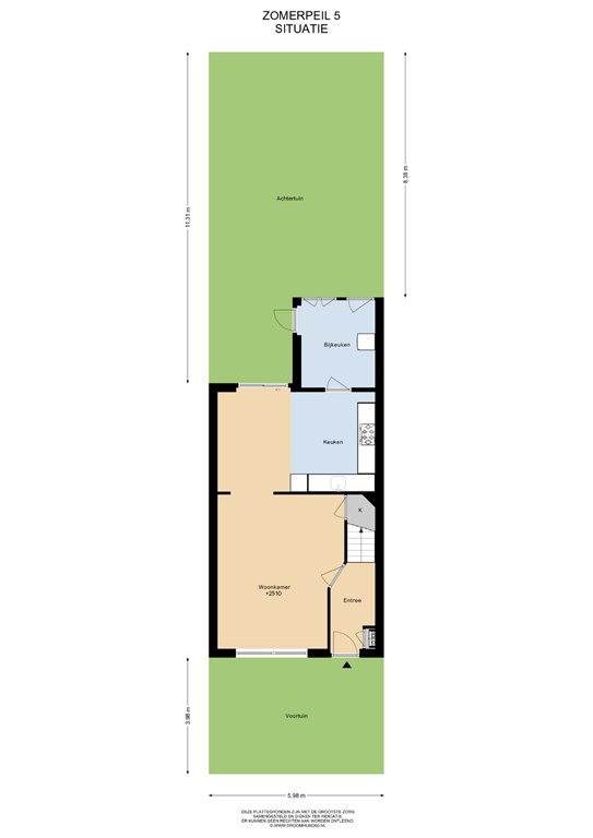
We lopen nog even terug naar de tuin. Hier bevindt zich een terrasoverkapping waar je vanaf de eerste zonnestralen al heerlijk kunt vertoeven. De achtertuin heeft een ruime terrasoverkapping, dus ook bij regen is het op Zomerpeil 5 genieten van het buiten zijn. Daarnaast biedt de omgeving tal van voorzieningen en faciliteiten, zoals scholen, kerken, winkels en recreatiemogelijkheden, waardoor het hier heerlijk wonen is.

Ben jij op zoek naar een fijne plek om thuis te komen, met de zekerheid van recente renovaties en lage energielasten, én de mogelijkheid om een deel van de woning volledig naar eigen hand te zetten? Dan is deze tussenwoning op Zomerpeil 5 de ideale keuze voor jou.
Neem snel contact met ons op voor meer informatie of een bezichtiging. Je nieuwe, duurzame thuis wacht op je!

Indeling van de woning
Begane grond: entree met meterkast, garderobe & trapopgang, ruime woonkamer, keuken met landelijke inrichting (w.o. 5 pits gasfornuis en vaatwasser), 1e toilet, ruime achterstraat met houten terrasoverkapping en schuur.
Eerste verdieping: Overloop, 3 slaapkamers, recent gerenoveerde badkamer (2025) met ligbad, wastafel en 2e toilet.
Tweede verdieping: Grote, open zolderruimte met de mogelijkheid voor een 4e/5e slaapkamer.

Bijzonderheden
• Energiezuinig: Nieuwe (hybride) ketel (2025), nieuwe zonnepanelen (2025) en een thuis accu voor optimale duurzaamheid.
• Badkamer recent gerenoveerd (2025).
• Grotendeel nog af te werken naar eigen inzicht.
• Verwarming d.m.v. centrale verwarming en deels vloerverwarming keuken.
• PVC vloer op de benedenverdieping en in de keuken liggen tegels.
• Kindvriendelijke buurt met speeltuin voor de deur.
• Woning met potentie (uit te breiden met b.v. een dakkapel).
• Direct leeg te aanvaarden.
• Kosten koper en gunning voorbehouden.
________________________________________
Ons kantoor besteedt de uiterste zorg aan de betrouwbaarheid en actualiteit van de gegevens in de door ons samengestelde verkoopbrochure. Onjuistheden en onvolledigheden kunnen echter voorkomen.

Plattegronden