Het Ruim 12

8322 AL Urk
Koopprijs
€ 549.000,-

Status: Beschikbaar
Koopprijs: € 549.000,- k.k.
Adres: Het Ruim 12
Postcode: 8322 AL
Plaats: Urk
Woonplaats: Flevoland
Aanvaarding: In overleg
Perceeloppervlakte: 280 m2
Woonoppervlakte: 155 m2
Aantal Kamer(s): 5
Aantal parkeerplaatsen: 2
Onderhoud binnen: Goed
Onderhoud buiten: Goed
Bouwjaar: 1996
Woonhuis soort: Eengezinswoning
Woonhuis type: Geschakelde woning
Energie klasse: A
Einddatum energie label: 27 december 2030
Verwarming: CV ketel, Airconditioning, Mogelijkheid tot openhaard
Aantal garages: 1
Aangeboden sinds: 31 oktober 2025, 08:05

Omschrijving

Het Ruim 12, Urk

Half vrijstaande woning | Boerderijstijl | 175 m² woonoppervlak | Perceel 280 m² | Energielabel A | Richtprijs €549.000 k.k.

Aan een rustige, groen opgezette woonwijk staat deze sfeervolle half vrijstaande woning, gebouwd in boerderijstijl. Een huis met karakter, ruimte en comfort — waar warmte en rust samenkomen. Hier geniet u van een vrij uitzicht en woont u op een plek die direct als thuis voelt.

De eerste indruk is meteen goed: een ruime oprit met plaats voor drie auto’s, de charmante gevel en het landelijke karakter zorgen ervoor dat je je welkom voelt nog vóór je binnen bent. En dat gevoel zet zich voort, want binnen treft u een royale en lichte woonkamer met grote ramen en een fijne indeling. De sfeer is warm en uitnodigend, met warme materialen, natuurlijke tinten en een tijdloze uitstraling — een heerlijke plek voor ontspanning en samenzijn.

De ruime woonkeuken vormt het hart van het huis: een gezellige plek waar gekookt, gepraat en geleefd wordt. Aansluitend vindt u een praktische bijkeuken, voorzien van aansluitingen voor witgoed en extra bergruimte. Vanuit hier heb je toegang tot de garage, die slim is gesplitst in twee delen: één deel is perfect geschikt als berging, hobby of werkruimte en het andere deel als beschutte plek voor fietsen, wegzet en eventueel ook te gebruiken als inkom.

Op de verdieping bevinden zich vier comfortabele slaapkamers, stuk voor stuk licht en goed ingedeeld. De badkamer is netjes en compleet en biedt alles wat een gezin nodig heeft. Via de vlizotrap is er toegang tot de ruime vliering – ideaal als extra opbergruimte.

Ook buiten klopt het plaatje en is het genieten. De verzorgde tuin aan de voorzijde en de gezellige achterstraat bieden volop ruimte om te genieten van het buitenleven. Of het nu gaat om een kop koffie in de ochtendzon, een zomerse barbecue of gewoon even ontspannen terwijl de kinderen spelen – hier kan het allemaal. Tevens staat hier een stevige, houten veranda met een fijne zit plek en een gedeelte met een handige berging voor bijvoorbeeld het tuingereedschap.

Het uitzicht aan de voorzijde is groen en vrij, met de singel aan het Ruim als natuurlijke buffer. Parkeren is hier geen enkel probleem, met een eigen ruime oprit. Hier woon je rustig, met volop privacy, en toch dicht bij alles wat Urk te bieden heeft.

Het Ruim 12 ligt in een kindvriendelijke, rustige buurt met veel groen en speelgelegenheden. Scholen, winkels en sportvoorzieningen bevinden zich op loopafstand. Een ideale combinatie van vrij wonen en het gemak van voorzieningen om de hoek.

Het Ruim 12 is een huis dat voelt als een warme deken. Een woning waar je thuiskomt met ruimte voor een (op)groeiend gezin op een plek waar elk seizoen zijn eigen charme heeft.

Bijzonderheden
• Half vrijstaande woning in boerderijstijl
• 175 m² woonoppervlak | perceel 280 m²
• Energielabel A
• Vier slaapkamers
• Ruime oprit voor drie auto’s
• Praktische bijkeuken en multifunctionele garage
• Rustige, groene ligging met vrij uitzicht
• Faciliteiten op loopafstand

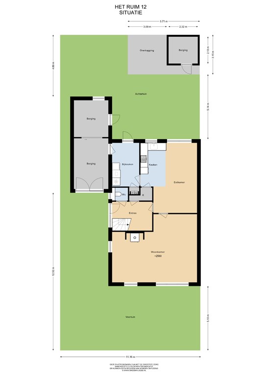
Plattegronden