Almerelaan 10

8321 JB Urk
Koopprijs
€ 469.000,-

Status: Verkocht
Koopprijs: € 469.000,- k.k.
Adres: Almerelaan 10
Postcode: 8321 JB
Plaats: Urk
Woonplaats: Flevoland
Aanvaarding: Direct
Perceeloppervlakte: 185 m2
Woonoppervlakte: 163 m2
Aantal Kamer(s): 4
Onderhoud binnen: Goed
Onderhoud buiten: Goed
Bouwjaar: 1960
Woonhuis soort: Eengezinswoning
Woonhuis type: Twee-onder-een-kap-woning
Aangeboden sinds: 12 december 2025, 13:30

Omschrijving

Royale twee-onder-een-kapwoning op unieke locatie nabij het bos en de Hofstee

Ontdek deze royale twee-onder-een-kapwoning uit 1960, gelegen in een geliefde wijk dichtbij de Hofstee, en op korte afstand van het Urkerbos. Met een woonoppervlak van maar liefst 163 m² en een perceel van 185 m², biedt deze woning verrassend veel leefruimte én heerlijke zonnige buitenruimte.

Indeling:
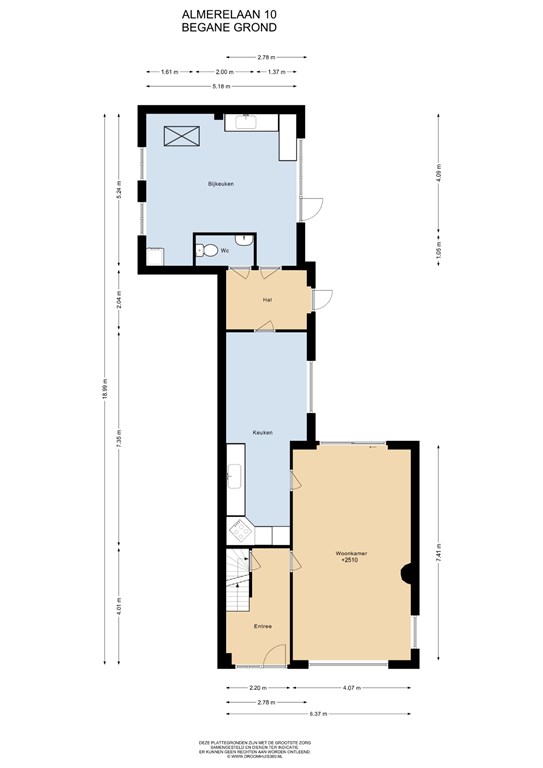
Begane grond
Bij binnenkomst ervaart u direct de warme, lichte sfeer van de woning. De ruime woonkamer biedt volop mogelijkheden voor een royale zithoek en een gezellige eethoek. De grote raampartijen zorgen voor veel natuurlijke lichtinval en een fijne verbinding met de tuin.
Aansluitend bevindt zich de grote bijkeuken/schuur — een echte meerwaarde van deze woning. Deze multifunctionele ruimte is ideaal als hobbyruimte, praktische bijkeuken, atelier of zelfs thuiswerkplek. De omvang en indeling maken het mogelijk om hier geheel naar eigen wens een nieuwe functie aan te geven.

Eerste verdieping
Op de verdieping bevinden zich momenteel twee ruime slaapkamers, maar oorspronkelijk waren dit er drie — waardoor het eenvoudig is om weer een derde slaapkamer te creëren. De grote badkamer is comfortabel van formaat en biedt ruimte voor een ligbad, douche en wastafelmeubel, met nog voldoende ruimte voor extra kasten of een dubbele opstelling.

Zolderverdieping
De zolder is een echte verrassing. Dankzij de goede stahoogte en open indeling zijn hier tal van mogelijkheden: een extra slaapkamer, werkruimte, speelzolder of luxe master bedroom behoren allemaal tot de opties. De solide constructie uit 1960 leent zich uitstekend voor verdere modernisering of creatieve indelingen.

Buitenleven
De fraai gelegen achtertuin op het zuiden is een heerlijk verlengstuk van de woning. De zonnige ligging maakt dit dé plek om van de ochtend tot de avond te genieten van het buitenleven. Of u nu houdt van tuinieren, ontspannen met een boek of het creëren van een gezellige zithoek: deze tuin biedt volop mogelijkheden.
De omgeving draagt verder bij aan een fijne woonervaring. Met het bos op loop- en fietsafstand is dit de perfecte plek voor natuurliefhebbers, sportievelingen en gezinnen die graag buiten leven.

Kortom
Deze woning biedt een unieke combinatie van ruimte, licht, een zonnige tuin en een fantastische ligging dichtbij de natuur. Met zijn multifunctionele indeling en uitbreidingsmogelijkheden is dit een ideaal huis voor gezinnen, thuiswerkers of iedereen die graag vrij en comfortabel woont.

Vraagprijs: € 469.000,– k.k.
Gunning voorbehouden.

Plattegronden